close

ליצירת קשר

השאירו את הפרטים ואנו ניצור אתכם קשר

    למשרד החדש שלך!

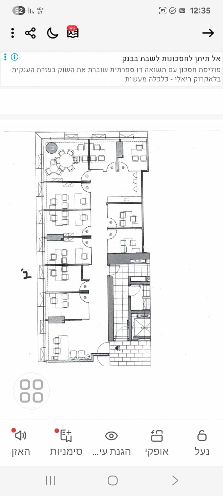
    במגדל בסר 4 המפואר משרד 236 מטר, 11 חדרים

    במגדל בסר 4 המפואר משרד 236 מטר, 11 חדרים

    • סוג נכס: משרדים לחברות פיננסים ושיווק
    • שטח הנכס: 236
    • טווח מחירים: 65 ש"ח
    • מספר חדרים: 13
    • תאריך פינוי: 30/01/2026

    במגדל בסר 4 משרד מואר ומשופץ, 11 חדרים רחבים ומפנקים, קבלה מטבחון, חדר ישיבות, חדר מנכ"ל.

    מותאם למשרדי שיווק ועורכי דין.

    למשרד החדש שלך!

    נמכר
    להשכרה משרד מפואר בבסר 4 133 מטר במרכז הסיטי של בני ברק
    • חדרים:  5
    • גודל:  133 מ”ר
    • סוג נכס:  משרדים להשכרה בבני ברק
    להשכרה 76 מ"ר בהכשרת הישוב קומה גבוהה
    • חדרים:  3
    • גודל:  78 מ”ר
    • מחיר:  68 ש”ח
    • סוג נכס:  להשכרה
    במגדלי לייף היוקרתיים 700 מטר להשכרה - משרדים מפוארים, קומה גבוהה נוף לפארק ולים, מרוהט לחלוטין
    • חדרים:  25
    • גודל:  700 מ”ר
    • מחיר:  105 ש”ח
    • סוג נכס:  משרדים לחברות פיננסים ושיווק
    ליצירת קשר
    השאירו את הפרטים ואנו ניצור אתכם קשר

      054-4500159 דברו איתנו WhatsApp
      דילוג לתוכן